Перейти к контенту

Бак для мусора и ТБО - ⭐Велес

Пропустить меню
de ru en uk
(067) 574 74 52  

Перезвонить Вам?

Производство всех видов ПВХ тентовмягких окон ПВХшвейных изделийметаллоконструкцийторгового оборудованиястеллажейподставоквитрин

товаров
на сумму
Пропустить меню
Тенты и металлоконструкции > Металлоконструкции

Бак для мусора и ТБО

Мусорные баки
Бак мусорный 0,75 куб.м.
Мусорный бак
уголок по периметру 25х25*3мм,
покраска - грунт+эмаль,
ручки, ножки
минимальное количество 5 шт.
Цена без скидки5500.00 грн.
Основные характеристики и преимущества металлических мусорных баков нашего производства:

  • металлический лист холоднокатанный ГОСТ 1.2 мм толщиной и горячекатанный лист ГОСТ 2.0 мм толщиной
  • качественная сварка металла как внутри так и снаружи металлического мусорного бака
  • специальное профилирование деталей при сборке мусорных баков увеличивает срок их службы
  • наличие ограничительных упоров на металлическом мусорном баке для обслуживающей мусоросборочной спецтехники с различными типами загрузки
  • наличие специальных технических водостоков в нижней части металлического мусорного бака
  • наличие ножек в нижней части мусорного бака, предотвращает от преждевременной коррозии, и как следствие продлевает сроки службы металлического бака для сбора твердых бытовых отходов
  • удобная высота металлического мусорного бака - 1 метр.
Контейнер для пластиковых бутылок
Контейнер для пластиковых бутылок
Контейнер пластиковых бутылок
Объем 1 куб.м
Габаритная высота 1,4 м,
высота корзины 1 м,
ширина1,2 м,
глубина 0,9 м,
каркас труба 20*20мм, ячейка 50*50мм диаметр проволоки 2,7 мм
Сборно-разборный
Цена без скидки2000.00 грн.
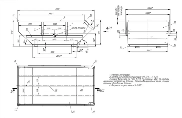
Бункер-контейнер  ТБО
В верхней части корпус имеет обрамление из гнутого швеллера или профильной трубы.

Задняя стенка имеет усиление из дополнительного профиля, расположенного на 3/5 ее высоты.

Боковые стенки снабжены захватами для погрузки бункера-накопителя на мусоровоз и разгрузки.

Спереди бункер-накопитель имеет упоры для фиксации его на мусоровозах при транспортировке.

Сзади бункер-накопитель оснащен захватами, используемыми при разгрузке.
Захваты выполнены из круга Ст3 диаметром 40 мм, вварены в пластину толщиной 8 мм и имеют ограничители в виде пластин грушевидной формы толщиной 5 мм, приваренных к их торцам.

Корпус бункера-накопителя, стыки силовых элементов и захваты сварены полуавтоматической сваркой.

Углы обрамления корпуса усилены дополнительной пластиной.

Внутренние углы корпуса усилены ромбовидными накладками.

Корпус бункера-накопителя полностью загрунтован и окрашен алкидной эмалью.


Информация :
Мы в соцсетях :
Наши контакты :
Пропустить меню
г. Харьков,
ул. Космическая 22, офис 237

(067) 574 74 52   
(063) 761 19 73
(057) 719 55 88 (Харьков)
(057) 719 45 00 (Харьков)
(044) 209 20 74 (Киев)
Copyright ©  2003-2026  Частное предприятие "Велес"
Назад к содержимому